Rif: GES50
MILANO
MILANO - zona Washington
Rif.: GES50 - In stabile signorile di fine anni '50, dotato di ascensore, proponiamo in vendita un attico esclusivo posto al quinto e ultimo piano. L'appartamento, caratterizzato da una tripla esposizione Est/Ovest/Sud – la migliore possibile – gode di una luminosità straordinaria durante l'intero arco della giornata.
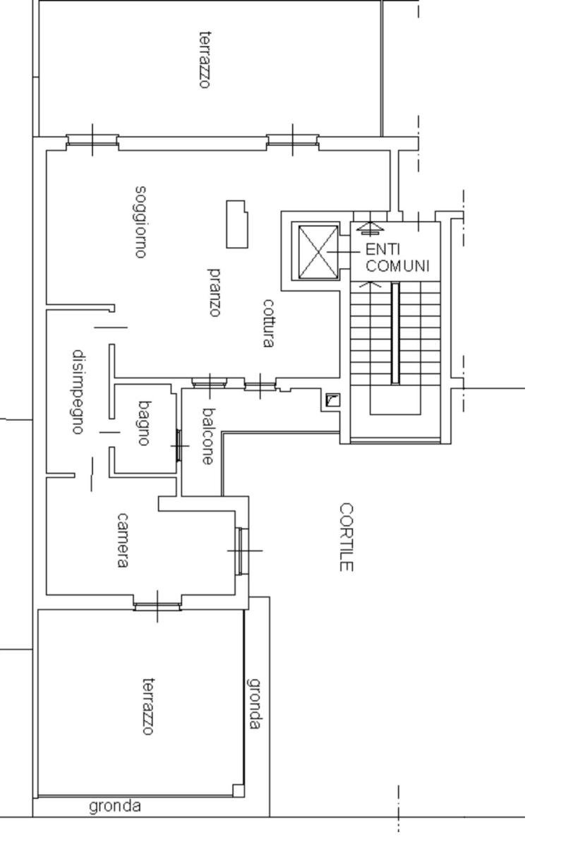
La soluzione si compone di:
- ingresso
- soggiorno con angolo cottura
- camera matrimoniale
- bagno
- balcone
- cantina
- due ampi terrazzi di proprietà
Le finiture interne, curate e di pregio, includono parquet in essenza Afrormosia in tutti gli ambienti eccetto il bagno. L'aria condizionata con pompa di calore serve ogni locale. Gli infissi sono dotati di doppio vetro e zanzariere; è presente inoltre un impianto di allarme perimetrico.
Il vero valore aggiunto dell'immobile sono i due splendidi terrazzi, il primo, di circa 27 mq, accessibile dalla zona living, affaccia su via Romolo Gessi;
il secondo, di circa 24 mq, raggiungibile dalla camera da letto e rivolto verso il cortile interno, ideale per godersi tramonti suggestivi e momenti di relax.
Location: l'immobile si trova in una delle zone più richieste della città: tranquilla ma ricca di servizi, tra via Foppa e via Washington, con negozi, supermercati, scuole e aree verdi a breve distanza. Ottimi i collegamenti grazie alla vicinissima fermata MM4 Bolivar, a pochi metri da casa.
Richiesta: Eu. 690.000
Punti di forza
- Doppi terrazzi di ampie dimensioni
- Ottima distribuzione degli spazi
- Vicinanza alla metro MM4
- Finiture di pregio e dotazioni moderne
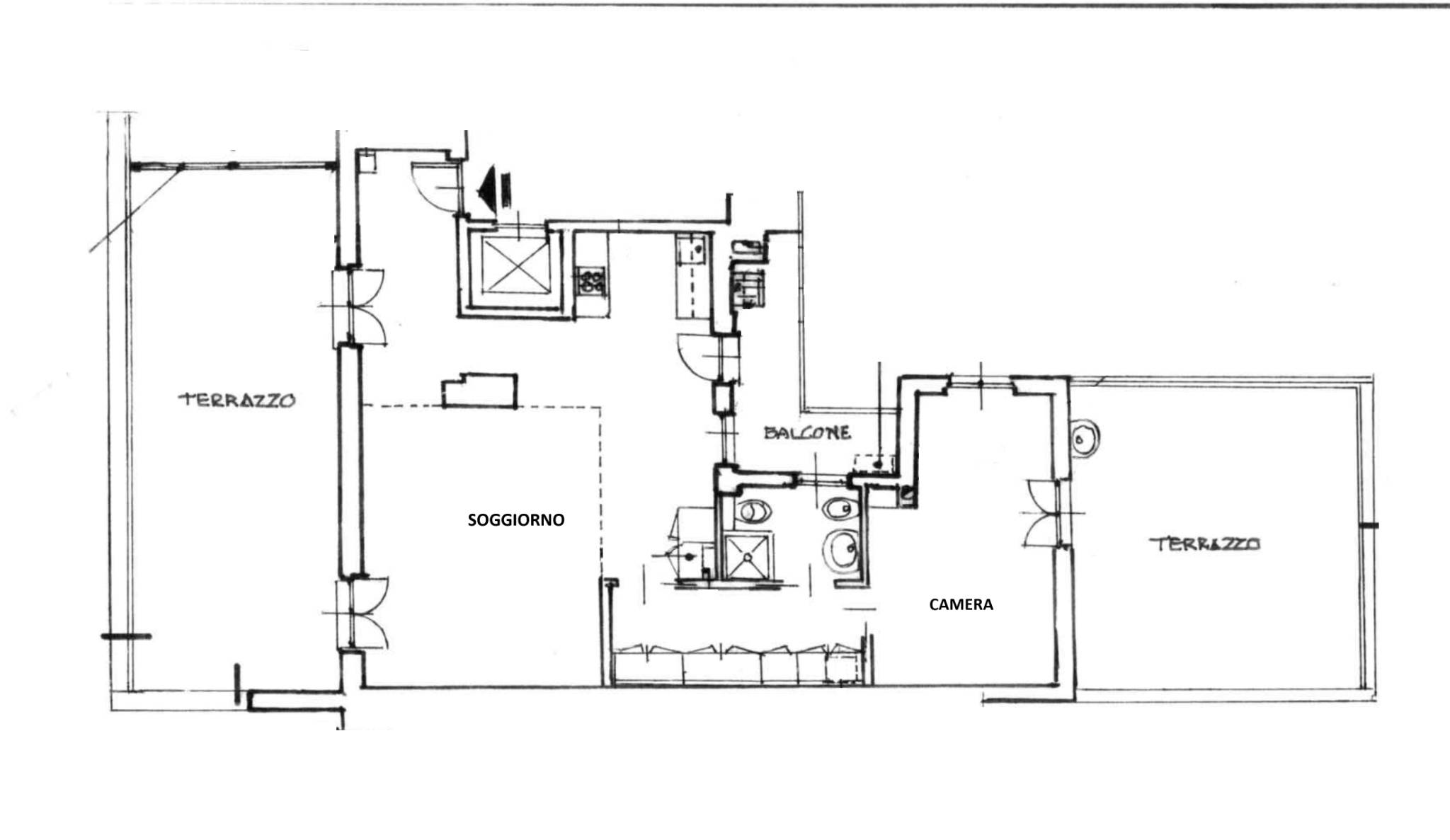
La soluzione si compone di:
- ingresso
- soggiorno con angolo cottura
- camera matrimoniale
- bagno
- balcone
- cantina
- due ampi terrazzi di proprietà
Le finiture interne, curate e di pregio, includono parquet in essenza Afrormosia in tutti gli ambienti eccetto il bagno. L'aria condizionata con pompa di calore serve ogni locale. Gli infissi sono dotati di doppio vetro e zanzariere; è presente inoltre un impianto di allarme perimetrico.
Il vero valore aggiunto dell'immobile sono i due splendidi terrazzi, il primo, di circa 27 mq, accessibile dalla zona living, affaccia su via Romolo Gessi;
il secondo, di circa 24 mq, raggiungibile dalla camera da letto e rivolto verso il cortile interno, ideale per godersi tramonti suggestivi e momenti di relax.
Location: l'immobile si trova in una delle zone più richieste della città: tranquilla ma ricca di servizi, tra via Foppa e via Washington, con negozi, supermercati, scuole e aree verdi a breve distanza. Ottimi i collegamenti grazie alla vicinissima fermata MM4 Bolivar, a pochi metri da casa.
Richiesta: Eu. 690.000
Punti di forza
- Doppi terrazzi di ampie dimensioni
- Ottima distribuzione degli spazi
- Vicinanza alla metro MM4
- Finiture di pregio e dotazioni moderne
Consistenze
| Descrizione | Superficie | Sup. comm. |
|---|---|---|
| Principali | ||
| Immobile - 5° piano | 73 Mq | 73 Mqc |
| Terrazza - 5° piano | 60 Mq | 18 Mqc |
| Totale | 91 Mqc | |








