Rif: VAL6
MILANO
MILANO - zona Solari
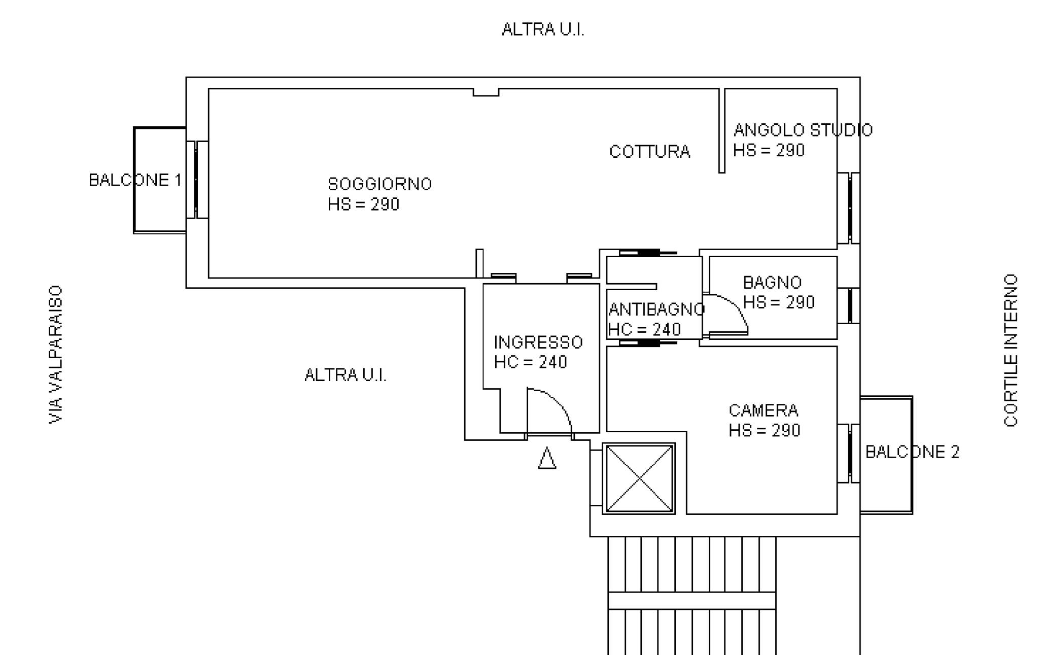
Rif:. VAL6 - In stabile signorile degli anni '60 proponiamo in vendita al quinto piano con ascensore un ampio bilocale composto da ingresso, soggiorno con cucina a vista, angolo studio, camera, bagno e doppio balcone. L'appartamento gode di doppia esposizione su via Valparaiso (Sud/Est) e sul cortile interno (Nord/Ovest) che gli dona ottima luminosità. Le finiture interne sono di pregio, con il parquet che ricopre ogni zona eccezion fatta per il bagno. E' inoltre dotato di impianto di condizionamento e tapparelle elettriche.
L'immobile si trova in un'area residenziale tranquilla e tra le più richieste di Milano. Sorge a pochi passi dal verde del parco Solari e dai giardini di via Dezza. Risulta inoltre ottimamente servito dai mezzi pubblici con le fermate delle metro MM4 California e MM2 Sant'Agostino nelle immediate vicinanze.
Richiesta Eu.490.000,00
Punti di forza:
- Posizione;
- Tranquillità;
- Piano alto;
L'immobile si trova in un'area residenziale tranquilla e tra le più richieste di Milano. Sorge a pochi passi dal verde del parco Solari e dai giardini di via Dezza. Risulta inoltre ottimamente servito dai mezzi pubblici con le fermate delle metro MM4 California e MM2 Sant'Agostino nelle immediate vicinanze.
Richiesta Eu.490.000,00
Punti di forza:
- Posizione;
- Tranquillità;
- Piano alto;
Consistenze
| Descrizione | Superficie | Sup. comm. |
|---|---|---|
| Principali | ||
| Immobile - 5° piano | 70 Mq | 70 Mqc |
| Totale | 70 Mqc | |








