Rif: GES50
MILANO
MILANO - zona Washington
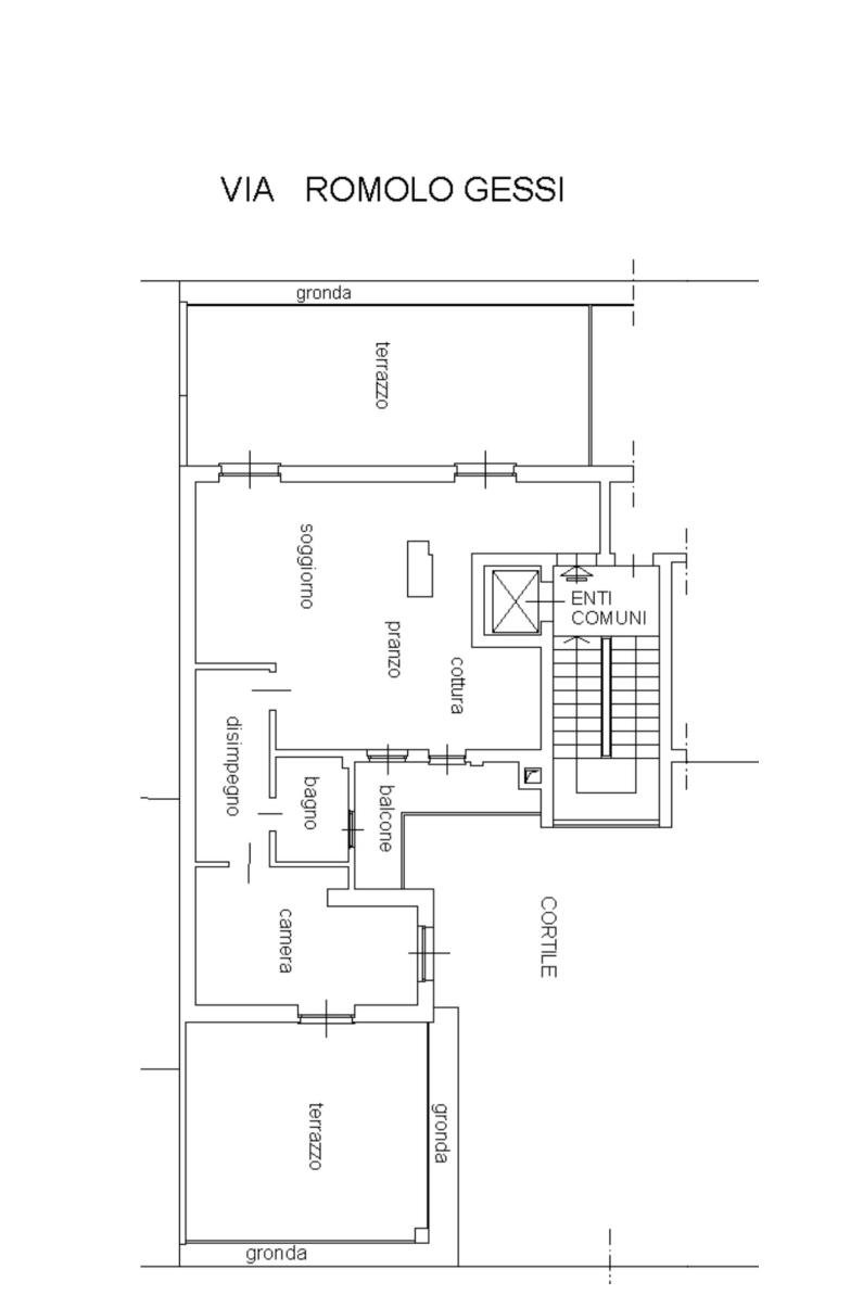
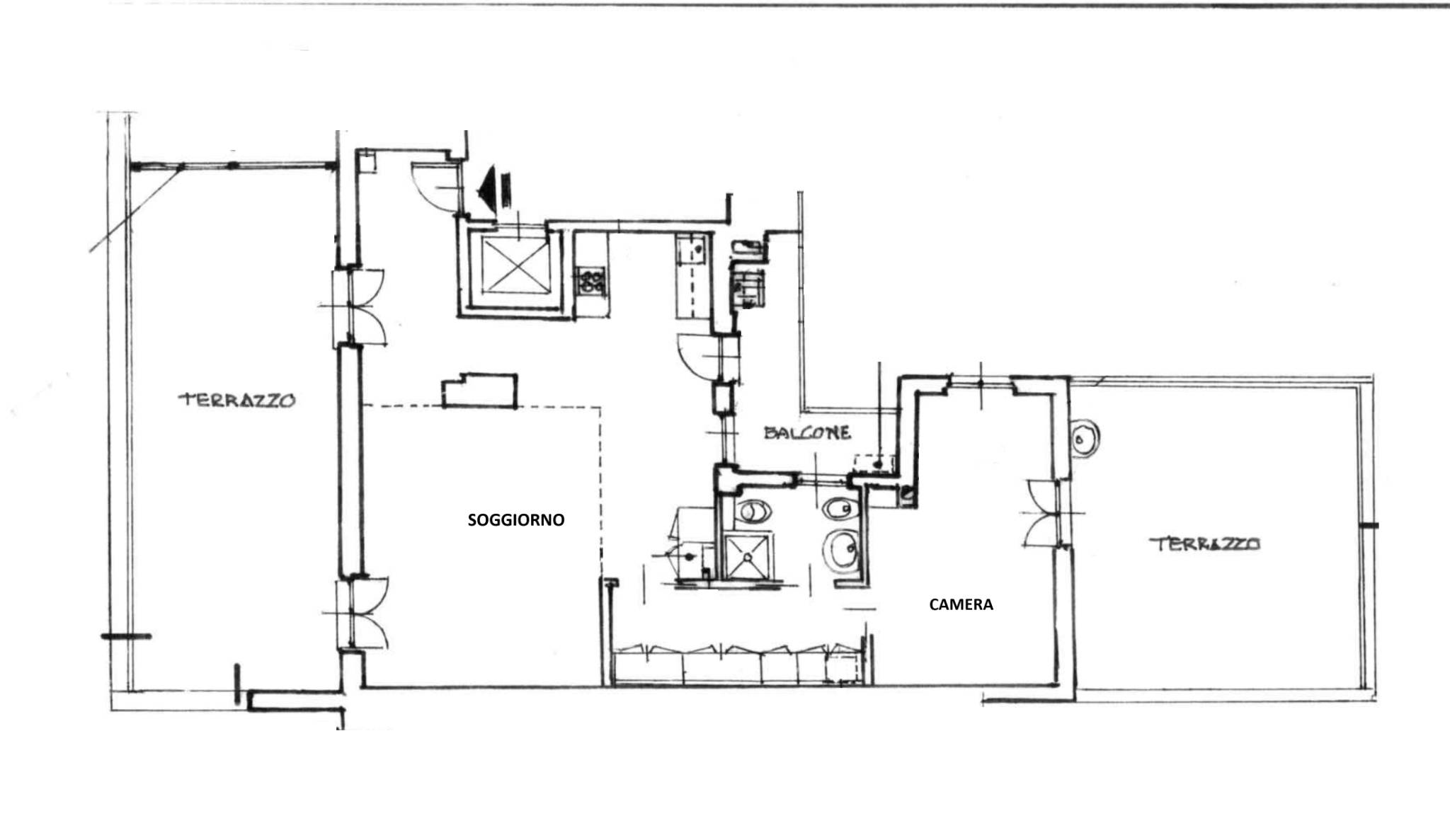
Rif.: GES50 - In stabile signorile di fine anni '50, servito da ascensore, proponiamo in vendita al quinto e ultimo piano un attico esclusivo composto da ingresso, soggiorno con angolo cottura, camera, bagno, balcone, cantina e due terrazzi. La soluzione gode di tripla esposizione Est/Ovest/Sud, la migliore possibile, che le dona una luminosità eccezionale. Le finiture interne sono di pregio, il parquet di essenza Afrormosia è presente ovunque tranne che nel bagno. L'aria condizionata è provvista di pompa di calore e serve tutti gli ambienti. Gli infissi sono dotati di doppio vetro e zanzariere. E' inoltre presente l'impianto di allarme perimetrico.
Il vero valore aggiunto dell'appartamento tuttavia sono i due ampi terrazzi. Il primo di circa 23mq, a cui si accede dalla zona living, espone su via Romolo Gessi. Il secondo, di circa 27mq, espone invece sul cortile interno, vi si accede dalla camera da letto e consente di godersi splendidi tramonti.
L'immobile si trova in un'area estremamente richiesta, tranquilla ma ben servita dai negozi e dai supermercati di via Foppa e di via Washington. Nelle immediate vicinanze sono presenti anche scuole e spazi verdi. Risulta inoltre perfettamente collegato dai mezzi pubblici, con la fermata della metropolitana linea blu MM4 Bolivar distante solo pochi metri.
Richiesta Eu.715.000,00
Punti di forza:
- Doppio Terrazzo;
- Distribuzione degli spazi;
- Vicinanza alla metro;
- Finiture;
Il vero valore aggiunto dell'appartamento tuttavia sono i due ampi terrazzi. Il primo di circa 23mq, a cui si accede dalla zona living, espone su via Romolo Gessi. Il secondo, di circa 27mq, espone invece sul cortile interno, vi si accede dalla camera da letto e consente di godersi splendidi tramonti.
L'immobile si trova in un'area estremamente richiesta, tranquilla ma ben servita dai negozi e dai supermercati di via Foppa e di via Washington. Nelle immediate vicinanze sono presenti anche scuole e spazi verdi. Risulta inoltre perfettamente collegato dai mezzi pubblici, con la fermata della metropolitana linea blu MM4 Bolivar distante solo pochi metri.
Richiesta Eu.715.000,00
Punti di forza:
- Doppio Terrazzo;
- Distribuzione degli spazi;
- Vicinanza alla metro;
- Finiture;
Consistenze
| Descrizione | Superficie | Sup. comm. |
|---|---|---|
| Principali | ||
| Immobile - 5° piano | 73 Mq | 73 Mqc |
| Terrazza - 5° piano | 60 Mq | 18 Mqc |
| Totale | 91 Mqc | |








